Let's Start Planning

Meeting Start Date / End Date

Conference Venues in New York City Unparalleled Meeting & Event Spaces

Ranging from our iconic ballroom to the bespoke Villard Mansion, Lotte New York Palace is home to some of the most extraordinary and unique meeting spaces in New York City.

lotte meetings venues inset

At A Glance 

30,000 sq. ft.
Total Meeting Space
Up to 1000 guests
Can be Accommodated In Private Events
23 Event Spaces
With State-Of-The-Art Technology

Key Amenities

  • Dedicated event managers
  • Multilingual staff
  • Seasoned team of Les Clefs d'Ors concierge
  • Award-winning cuisine and customized catering menus
  • 24-hour operations and technical support
  • Dedicated elevators to our banquet event spaces
  • Advanced audio-visual equipment and dedicated on-site technician provided by Encore
  • Video conferencing and webcasting capabilities
  • Assistance with music, floral and entertainment selections
  • On-site valet parking
  • Extensive bandwidth capacity and infrastructure

Meeting Venues

event space with rows of tables and chairs facing two projectors

Villard Ballroom

  • 3,456 sq. ft
  • up to 450 guests

With its unique oval shape, elaborate double ceiling, and sparkling chandeliers, the Villard Ballroom recalls the timeless glamour of New York City’s Gilded Age.

View Floorplan Chart View

Villard Ballroom

Dimensions 48x72
Area (sq ft) 3,456 sq. ft
Height 18
Classroom 150
Crescent 210
Theater 330
Rounds --
Reception 450
Conference --
U-Shape 55
Hollow Square 72
empty event space with carpet floors

Reid Salon

  • 1,525 sq. ft.
  • up to 156 guests

This elegant and highly customizable venue has 18-foot ceilings and magnificent crystal chandeliers.

View Floorplan Chart View

Reid Salon

Dimensions 25x67
Area (sq ft) 1,525 sq. ft.
Height 18
Classroom 86
Crescent 90
Theater 150
Rounds 156
Reception 150
Conference 50
U-Shape 50
Hollow Square 56
meeting venue holmes with spacious area lined with tables and chairs

Holmes I and II

  • 2,856 sq. ft.
  • up to 340 guests

Reminiscent of the grand rooms of Europe, the Holmes I and II features crystal chandeliers and sconces. Holmes I and II is divisible into two sections.

View Floorplan Chart View

Holmes I and II

Dimensions 42x69
Area (sq ft) 2,856 sq. ft.
Height 12.5
Classroom 150
Crescent 200
Theater 325
Rounds 300
Reception 340
Conference 60
U-Shape 55
Hollow Square 72
large meetings venue set for a large event with golden colors and a chandelier

Kennedy I and II

  • 1,961 sq. ft
  • up to 200 guests

Ideal for large receptions and corporate conferences, the Kennedy Room can also be divided into two sections. This adaptable space features contemporary design and decor elements.

View Floorplan Chart View

Kennedy I and II

Dimensions 37x53
Area (sq ft) 1,961 sq. ft
Height 11
Classroom 80
Crescent 110
Theater 150
Rounds 160
Reception 200
Conference --
U-Shape --
Hollow Square --
long rectangular board table with notebooks on table

Adams

  • 616 sq. ft.
  • up to 60 guests

Perfect for private dinners, the intimate Adams Room works equally well as an executive boardroom or office.

View Floorplan Chart View

Adams

Dimensions 22x28
Area (sq ft) 616 sq. ft.
Height 11
Classroom 36
Crescent 40
Theater 50
Rounds 45
Reception 60
Conference 24
U-Shape 20
Hollow Square 24
natural light hitting a room with wall art
large empty space for an elegant event with red carpet
kitchen island with trays of fruit and cheese

The Apartment

  • 1,907 sq. ft
  • up to 125 guests

The magnificently restored Apartment has a distinctly residential feel with oversized windows overlooking the Courtyard and St. Patrick’s Cathedral.

View Floorplan Chart View

The Apartment

Dimensions --
Area (sq ft) 1,907 sq. ft
Height 15
Classroom --
Crescent --
Theater --
Rounds --
Reception 125
Conference --
U-Shape --
Hollow Square --
open large hallway with a view of an accent table by the window

Louis

  • 704 sq. ft.
  • up to 70 guests

Named for the renowned stained glass craftsman Louis Comfort Tiffany, the Louis Room is a bright space with natural light for meetings and events.

View Floorplan Chart View

Louis

Dimensions 40x18
Area (sq ft) 704 sq. ft.
Height 11
Classroom 30
Crescent 54
Theater 50
Rounds 60
Reception 70
Conference 30
U-Shape 28
Hollow Square 32
lounge room with multiple chairs by window

Stanford

  • 453 sq. ft
  • up to 45 guests

A perfectly proportioned executive meeting room, this intimate space honoring Villard Mansion architect Stanford White can be combined with the Rutherford Room, located across the hall, to host a meeting with breaks or a meal.

View Floorplan Chart View

Stanford

Dimensions 26x18
Area (sq ft) 453 sq. ft
Height 11
Classroom 20
Crescent 36
Theater 25
Rounds 40
Reception 45
Conference 16
U-Shape 14
Hollow Square 16
zoomed view of top of a dining table with all the place settings

Rutherford

  • 452 sq. ft.
  • up to 45 guests

An intimate space with abundant natural light, the Rutherford Room honors architect William Rutherford Mead. It can be used in conjunction with the adjacent Stanford Room.

View Floorplan Chart View

Rutherford

Dimensions 26x18
Area (sq ft) 452 sq. ft.
Height 11
Classroom 20
Crescent 36
Theater 25
Rounds 40
Reception 45
Conference 16
U-Shape 14
Hollow Square 16
intimate room with a long table near a fireplace

Roswell

  • 507 sq. ft
  • up to 45 guests

Named after publisher Roswell Smith, one of the original Villard residents and an outspoken abolitionist, the sunlit Roswell Room is well-suited for board meetings, breakout sessions, and office space. Highlights include original architectural details, natural light and a large foyer.

View Floorplan Chart View

Roswell

Dimensions 26x18
Area (sq ft) 507 sq. ft
Height 11
Classroom 20
Crescent 36
Theater 25
Rounds 40
Reception 45
Conference 16
U-Shape 14
Hollow Square 16
meeting venue spellman with black table covers and gold chairs

Spellman

  • 1,856 sq. ft.
  • up to 160 guests

A larger versatile space, the Spellman Room features abundant natural light from windows on two walls. 

View Floorplan Chart View

Spellman

Dimensions 29x64
Area (sq ft) 1,856 sq. ft.
Height 11
Classroom 90
Crescent 100
Theater 160
Rounds 150
Reception 150
Conference 45
U-Shape 45
Hollow Square 50
hubbard venue with gold chairs and a chandelier

Hubbard I and II

  • 2,214 sq. ft.
  • up to 175 guests

These two large, side-by-side rooms are flexible, expansive Midtown meeting venues for meetings and receptions. Highly versatile, they can be used separately or together and feature a contemporary design.

View Floorplan Chart View

Hubbard I and II

Dimensions 56x38
Area (sq ft) 2,214 sq. ft.
Height 11
Classroom 80
Crescent 128
Theater 175
Rounds 160
Reception 150
Conference --
U-Shape --
Hollow Square --
long rectangular board table with notebooks on table

Campbell

  • 442 sq. ft.
  • up to 35 guests

The Campbell Room is a favorite venue for small-scale business meetings, breakouts or office.

View Floorplan Chart View

Campbell

Dimensions 19x36
Area (sq ft) 442 sq. ft.
Height 11
Classroom 18
Crescent 27
Theater 20
Rounds 30
Reception 35
Conference 16
U-Shape 14
Hollow Square 16
long rectangular board table with notebooks

Winslow

  • 855 sq. ft.
  • up to 70 guests

One of our most adaptable and flexible event venues, the sophisticated Winslow Room offers bright, fresh space for a meeting or breakout.

View Floorplan Chart View

Winslow

Dimensions 19x45
Area (sq ft) 855 sq. ft.
Height 11
Classroom 36
Crescent 54
Theater 70
Rounds 60
Reception 60
Conference 30
U-Shape 26
Hollow Square 30
event room with rectangular tables and waters/notes on the table

Garrison

  • 1,120 sq. ft.
  • up to 125 guests

Named for William Lloyd Garrison, an outspoken abolitionist and the father-in-law of Henry Villard, the decorative Garrison Room is an elegantly appointed event space.

View Floorplan Chart View

Garrison

Dimensions 54x22
Area (sq ft) 1,120 sq. ft.
Height 9
Classroom 60
Crescent 72
Theater 125
Rounds 120
Reception 125
Conference 40
U-Shape 36
Hollow Square 42
elegant event with smaller round tables and a bar

Henry

  • 651 sq. ft.
  • up to 70 guests

Overlooking 50th Street, the exquisite Henry Room is named for Henry Villard. Intricately detailed with natural light, this beautiful space can be used in conjunction with the nearby Garrison Room.

View Floorplan Chart View

Henry

Dimensions 39x18
Area (sq ft) 651 sq. ft.
Height 9
Classroom 30
Crescent 45
Theater 50
Rounds 60
Reception 70
Conference 30
U-Shape 26
Hollow Square 30
lounge room with multiple chairs

Edison

  • 488 sq. ft.
  • up to 45 guests

With its name honoring the famous American inventor and partner of Henry Villard, Thomas Alva Edison, the Edison room is an ideal venue for meetings in Manhattan, combining elegant historic details with modern meeting services. The Edison Room features a large foyer area and natural light.

View Floorplan Chart View

Edison

Dimensions 23x23
Area (sq ft) 488 sq. ft.
Height 9
Classroom 18
Crescent 32
Theater 40
Rounds 40
Reception 45
Conference 16
U-Shape 14
Hollow Square 16
dark room with long dinner table  by the fireplace

Chairman’s Office

  • 440 sq. ft.
  • up to 50 guests

The Chairman’s Office blends old-world charm and flexibility. This intimate space features authentic wood paneling from the original Villard residence.

View Floorplan Chart View

Chairman’s Office

Dimensions 22x20
Area (sq ft) 440 sq. ft.
Height 11
Classroom 20
Crescent 45
Theater 40
Rounds 40
Reception 45
Conference 16
U-Shape 14
Hollow Square 16
large gold room meeting space with bar area and stool chairs

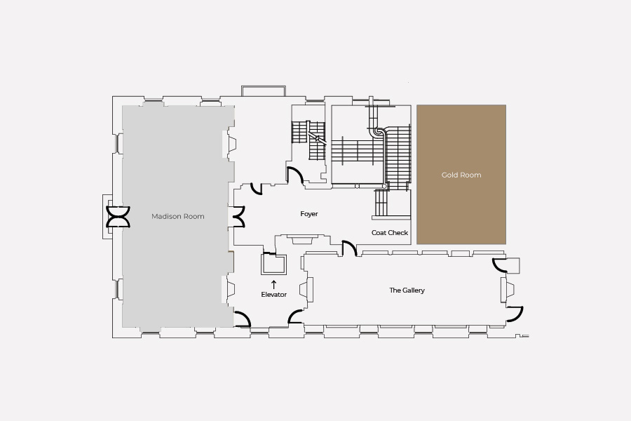
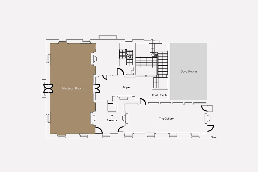
Gold Room

  • 1,026 sq. ft.
  • up to 150 guests

A dramatic 30-foot barrel-vaulted ceiling and large lunette wall murals by American artist John La Farge are highlights of this opulent, gilded space.

View Floorplan Chart View

Gold Room

Dimensions 27x38
Area (sq ft) 1,026 sq. ft.
Height 30
Classroom --
Crescent --
Theater --
Rounds --
Reception 150
Conference --
U-Shape --
Hollow Square --
large event space with gold accent walls and a chandelier

Madison Room

  • 1,400 sq. ft.
  • up to 150 guests

This 19th century drawing room designed by Stanford White features vaulted ceilings, chandeliers, and original works by French painter Pierre-Victor Galland.

View Floorplan Chart View

Madison Room

Dimensions 25x55
Area (sq ft) 1,400 sq. ft.
Height 15
Classroom 60
Crescent 90
Theater 100
Rounds 120
Reception 150
Conference 40
U-Shape 46
Hollow Square 48
long tables with chairs facing one direction

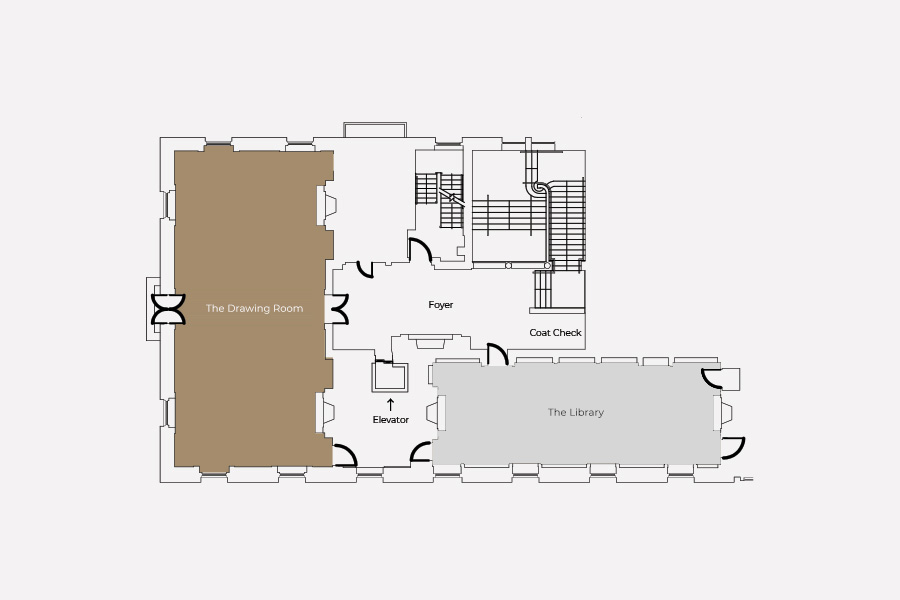
Drawing Room

  • 1,404 sq. ft.
  • up to 160 guests

Views of St. Patrick’s Cathedral are among the highlights of the Drawing Room, a sophisticated third-floor space featuring rich wood-paneled walls and ample space.

View Floorplan Chart View

Drawing Room

Dimensions 25x55
Area (sq ft) 1,404 sq. ft.
Height 15
Classroom 75
Crescent 90
Theater 140
Rounds 140
Reception 150
Conference 40
U-Shape 46
Hollow Square 48
dark room with firepit and dark wooden fixtures

The Library

  • 900 sq. ft.
  • up to 100 guests

With walls lined with literary works, the Villard Mansion’s original Library is an inspiring setting for a meeting or reception.

View Floorplan Chart View

The Library

Dimensions 18x50
Area (sq ft) 900 sq. ft.
Height 15
Classroom 40
Crescent 45
Theater 72
Rounds 80
Reception 80
Conference 36
U-Shape 40
Hollow Square 44
dark room with fireplace and dark wood walls

Rarities

An intimate, members-only lounge tucked away on the hotel’s mezzanine, Rarities is a singular setting for a business reception surrounded by one of the premier rare spirits collections in the country.

Rarities

Dimensions --
Area (sq ft) --
Height --
Classroom --
Crescent --
Theater --
Rounds --
Reception --
Conference --
U-Shape --
Hollow Square --
Venue Name Dimensions Area
(sq ft)
Height Classroom Crescent Theater Rounds Reception Conference U-Shape Hollow
Square
Villard Ballroom Floorplan 48x72 3,456 sq. ft 18 150 210 330 -- 450 -- 55 72
Reid Salon Floorplan 25x67 1,525 sq. ft. 18 86 90 150 156 150 50 50 56
Holmes I and II Floorplan 42x69 2,856 sq. ft. 12.5 150 200 325 300 340 60 55 72
Kennedy I and II Floorplan 37x53 1,961 sq. ft 11 80 110 150 160 200 -- -- --
Adams Floorplan 22x28 616 sq. ft. 11 36 40 50 45 60 24 20 24
The Apartment Floorplan -- 1,907 sq. ft 15 -- -- -- -- 125 -- -- --
Louis Floorplan 40x18 704 sq. ft. 11 30 54 50 60 70 30 28 32
Stanford Floorplan 26x18 453 sq. ft 11 20 36 25 40 45 16 14 16
Rutherford Floorplan 26x18 452 sq. ft. 11 20 36 25 40 45 16 14 16
Roswell Floorplan 26x18 507 sq. ft 11 20 36 25 40 45 16 14 16
Spellman Floorplan 29x64 1,856 sq. ft. 11 90 100 160 150 150 45 45 50
Hubbard I and II Floorplan 56x38 2,214 sq. ft. 11 80 128 175 160 150 -- -- --
Campbell Floorplan 19x36 442 sq. ft. 11 18 27 20 30 35 16 14 16
Winslow Floorplan 19x45 855 sq. ft. 11 36 54 70 60 60 30 26 30
Garrison Floorplan 54x22 1,120 sq. ft. 9 60 72 125 120 125 40 36 42
Henry Floorplan 39x18 651 sq. ft. 9 30 45 50 60 70 30 26 30
Edison Floorplan 23x23 488 sq. ft. 9 18 32 40 40 45 16 14 16
Chairman’s Office Floorplan 22x20 440 sq. ft. 11 20 45 40 40 45 16 14 16
Gold Room Floorplan 27x38 1,026 sq. ft. 30 -- -- -- -- 150 -- -- --
Madison Room Floorplan 25x55 1,400 sq. ft. 15 60 90 100 120 150 40 46 48
Drawing Room Floorplan 25x55 1,404 sq. ft. 15 75 90 140 140 150 40 46 48
The Library Floorplan 18x50 900 sq. ft. 15 40 45 72 80 80 36 40 44
Rarities -- -- -- -- -- -- -- -- -- -- --